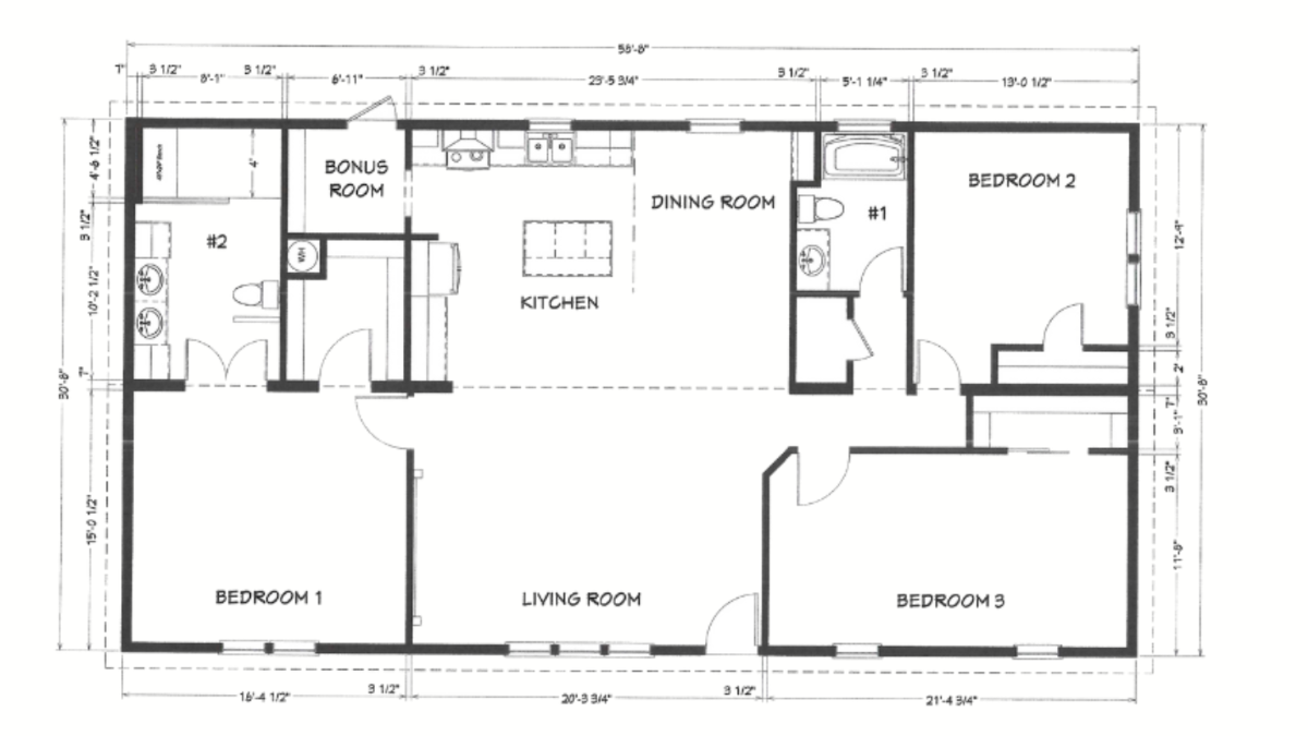
The Sedate
1814sq. ft | 3 Beds | 2 Baths
The Sedate by Jacobsen Homes features 3 bedrooms, 2 bathrooms, and 1,814 sq. ft. of thoughtfully designed living space. From the open living area to the spacious kitchen and comfortable bedrooms, this home is designed for modern living and everyday comfort.
Contact us for more details or visit our model center in Hudson, Florida

Disclaimer: All images and 3D tours are for representation purposes only. Actual homes may vary in color, design, features, fixtures, materials, and layout. Optional upgrades and decor shown in the visuals may not be included in the standard model. Please consult with your sales representative for specific details about the home you are purchasing.
OUR CURRENT MODEL HOMES













